Мы используем куки-файлы. Соглашение об использовании
Только на ЦианАукцион
Общая площадь228,8 м²
Жилая площадь33 м²
Площадь кухни11,4 м²
Этаж1 из 1
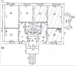
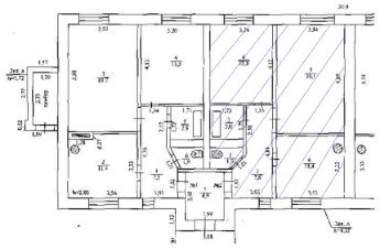
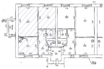
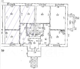
ОАО "РЖД" предлагает к продаже жилой дом с 4 двухкомнатными квартирами общей площадью 228,8 кв.м в Орловской области, Сведловского района, д. Еропкино-Большак. Ориентиром местоположения является частный дом по адресу: Орловская область, Свердловский район, д. Еропкино-Большак, ул. Центральная, д. 40. Одноэтажный кирпичный дом 2007 года постройки. В доме расположены четыре двухкомнатные квартиры с изолированной планировкой и раздельными санузлами. Рекомендуется проведение ремонта. Инженерные коммуникации: холодное водоснабжение, отопление, газ, электричество. Дом расположен в окружении жилой малоэтажной застройки. Хорошая транспортная доступность, удобный подъезд. В шаговой доступности начальная школа, магазины, остановка общественного транспорта и железнодорожная станция Еропкино-Большак. Об организации осмотра и подробных условиях продажи Вы можете узнать по телефону в объявлении. Состав предложения: - Квартира, кадастровый номер 57:15:0190101:410, площадь 56.7 кв.м, этаж 1. - Квартира, кадастровый номер 57:15:0190101:410, площадь 57.3 кв.м, этаж 1. - Квартира, кадастровый номер 57:15:0190101:410, площадь 58.0 кв.м, этаж 1. - квартира, кадастровый номер 57:15:0190101:410, площадь 56.8 кв.м, этаж 1. IDs: 8421, ПС: 16732, IDp: 36484.
АукционОбъект реализуется посредством электронных торгов. Конечную информацию об оплате, дополнительных платежах и условия заключения договора смотрите в документах извещения к лоту, на сайте электронной торговой площадки.
Позвоните автору
Вам ответят на все вопросы

О квартире

Тип жилья

Вторичка

Общая площадь

228,8 м²

Жилая площадь

33 м²

Площадь кухни

11,4 м²

Ремонт

Без ремонта

О доме

Тип дома

Кирпичный

Спросите умного помощника
Получите экспертное мнение о жилье

Расположение

Ипотечный калькулятор
  • Базовая
  • Семейная
  • ИТ-ипотека
  • 20%
  • 30%
  • 40%
  • 50%
лет
  • 10 лет
  • 20 лет
  • 30 лет
Загружаем предложения от застройщика и банков
Помощь риелтора
Проверенный риелтор поможет купить или продать квартиру
Начальная цена, аукцион
9 000 000 ₽
Цена за метр
39 336 ₽/м²
Условия сделки
свободная продажа
Агентство недвижимости
Документы проверены
Риелтор