39 336 ₽/м²
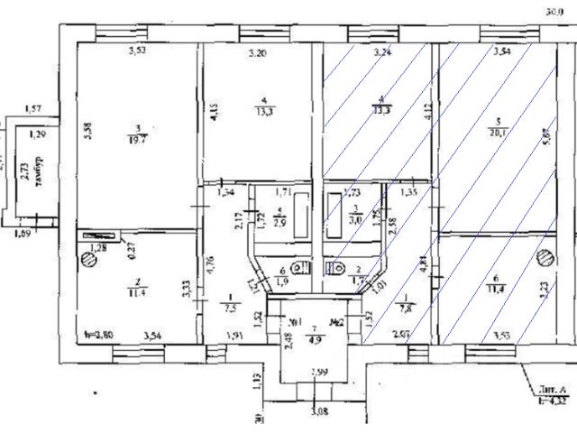
ОАО "РЖД" предлагает к продаже жилой дом с 4 двухкомнатными квартирами общей площадью 228,8 кв.м в Орловской области, Сведловского района, д. Еропкино-Большак. Ориентиром местоположения является частный дом по адресу: Орловская область, Свердловский район, д. Еропкино-Большак, ул. Центральная, д. 40. Одноэтажный кирпичный дом 2007 года постройки. В доме расположены четыре двухкомнатные квартиры с изолированной планировкой и раздельными санузлами. Рекомендуется проведение ремонта. Инженерные коммуникации: холодное водоснабжение, отопление, газ, электричество. Дом расположен в окружении жилой малоэтажной застройки. Хорошая транспортная доступность, удобный подъезд. В шаговой доступности начальная школа, магазины, остановка общественного транспорта и железнодорожная станция Еропкино-Большак. Об организации осмотра и подробных условиях продажи Вы можете узнать по телефону в объявлении. Состав предложения: - Квартира, кадастровый номер 57:15:0190101:410, площадь 56.7 кв.м, этаж 1. - Квартира, кадастровый номер 57:15:0190101:410, площадь 57.3 кв.м, этаж 1. - Квартира, кадастровый номер 57:15:0190101:410, площадь 58.0 кв.м, этаж 1. - квартира, кадастровый номер 57:15:0190101:410, площадь 56.8 кв.м, этаж 1. IDs: 8421, ПС: 16732, IDp: 36484.










































































